Generatieve Huurwoningen
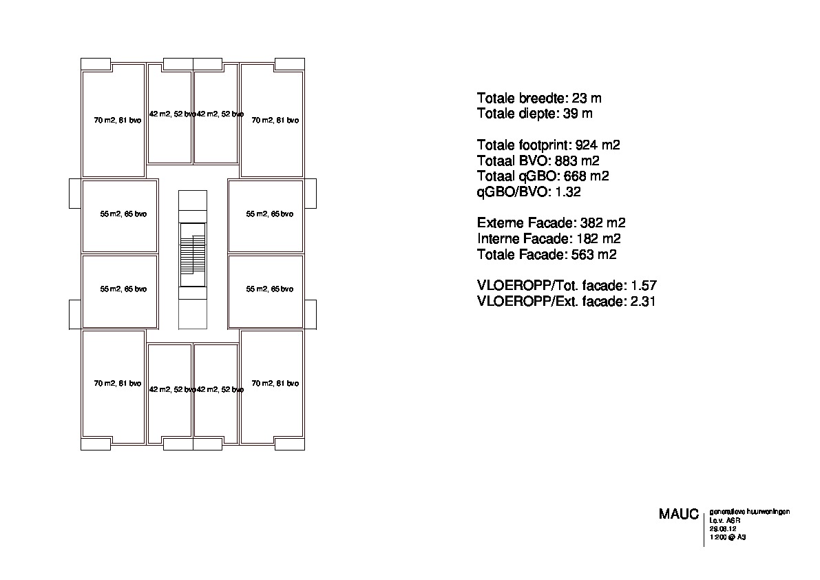
Voor ASR vastgoed ontwikkeling hebben wij een ontwerpstrategie gedefinieerd en uitgewerkt tot een verzameling scripts waarmee plattegronden gegenereerd worden die real-time gekoppeld zijn aan een rekenmodel dat de huuropbrengsten uitrekent. Verschillende ontsluitingen kunnen worden ontworpen met direct inzicht in het BVO/GBO rendement van die specifieke oplossing. Een wensenlijst van vierkante meters kan snel ingevoerd en geƫvalueerd worden.
Voor ASR vastgoed ontwikkeling hebben wij een ontwerpstrategie gedefinieerd en uitgewerkt tot een verzameling scripts waarmee plattegronden gegenereerd worden die real-time gekoppeld zijn aan een rekenmodel dat de huuropbrengsten uitrekent. Verschillende ontsluitingen kunnen worden ontworpen met direct inzicht in het BVO/GBO rendement van die specifieke oplossing. Een wensenlijst van vierkante meters kan snel ingevoerd en geƫvalueerd worden.
Zodra een financiele bandbreedte bepaald is, kunnen bepaalde plattegronden en functiesamenstellingen uitgekozen worden om aan de hand van 3d artist impressions onderzocht te worden.
Voor elke locatie zijn vaak meerdere oplossingen denkbaar en het is in deze fase onmisbaar om direct inzicht te hebben in de voor- en nadelen van de verschillende mogelijkheden. Juist in de initiatieffase is het noodzakelijk dat er een open evaluatie kan plaatsvinden van een portiekontsluiting, een gallerijontsluiting of een open kernontsluiting.
Het is inmiddels achterhaald dat niet-rechte lijnen in de bouw problematisch zouden zijn. Niet alleen is het mogelijk om met bestaande bouwtechnieken en reguliere partijen een gekromd bouwwerk te maken, er kleven ook bijzondere voordelen aan. In deze fase is het voordeel dat het gebouw soepel in de omgeving gepast kan worden en dat onnodige overgangen en aanpassingen vermeden worden. Het voordeel van deze gescripte oplossing is dat de vloeroppervlaktes correct en precies blijven ondanks de niet-paralelle wanden.